Gemeinschaftliches Wohnen

Sie träumen davon, gemeinschaftlich zu wohnen – mit Menschen, die ähnliche Werte teilen?

Dann könnte dieses Projekt genau das Richtige für Sie sein.

Das Haus soll mehr sein als nur ein Mietobjekt – es soll ein gemeinschaftlicher Lebensort werden. Ziel ist es, Menschen zusammenzubringen, die miteinander und füreinander wohnen möchten.

Für eine Doppelhaushälfte mit Garten suchen wir deshalb eine Hausgemeinschaft aus mindestens 4 bis 5 Personen, die gemeinsam ein Zuhause gestalten möchten. Ob Alt trifft Jung, Alleinerziehenden-WG oder berufstätige Menschen mit Gemeinschaftssinn – willkommen sind alle, die langfristig und verantwortungsbewusst wohnen möchten.

 

 

Rahmenbedingungen:

  • Belegung: mindestens 4–5 Personen
  • Mitgliedschaft: mind. eine Person muss bereits Mitglied der Hardtwaldsiedlung Karlsruhe eG sein
  • Mietbeginn: nach Absprache
  • Langfristiges Wohnen erwünscht
  • Bewerbungsfrist: bis zum 11.01.2026

Ihre Bewerbung:
Bitte stellen Sie uns Ihr Konzept für das gemeinschaftliche Wohnen vor.
Beschreiben Sie, wer in das Haus einziehen möchte, was Sie verbindet und wie Sie sich das Zusammenleben vorstellen.
Bitte nutzen Sie hierfür das Bewerbungsformular. Weitere Dokumente können Sie Ihre Mail einfach beifügen. 

Wir freuen uns auf kreative, engagierte und zukunftsorientierte Wohnideen!
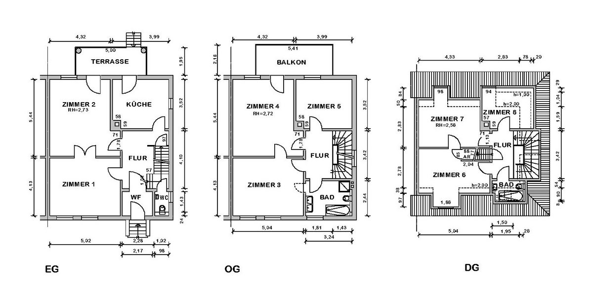
Fotos, Grundriss und weitere Informationen zu dem Objekt finden Sie im Exposé.

Bitte reichen Sie Ihre Bewerbungen per E-Mail ein: wohnprojekte(at)hws-ka.de
 

 

Sie haben Fragen?

Annika Rothenberger
Team I / Kaufmännische Betreuung
Erzbergerstr. / Von-Beck-Str. / Mühlburg /
Oststadt / Weststadt
Christine Alldinger
Betriebswirtschaftl. Assistenz / Neuvermietung/Gewerbl. Vermietung